• Neubau
  • Wettbewerb
  • Anerkennung
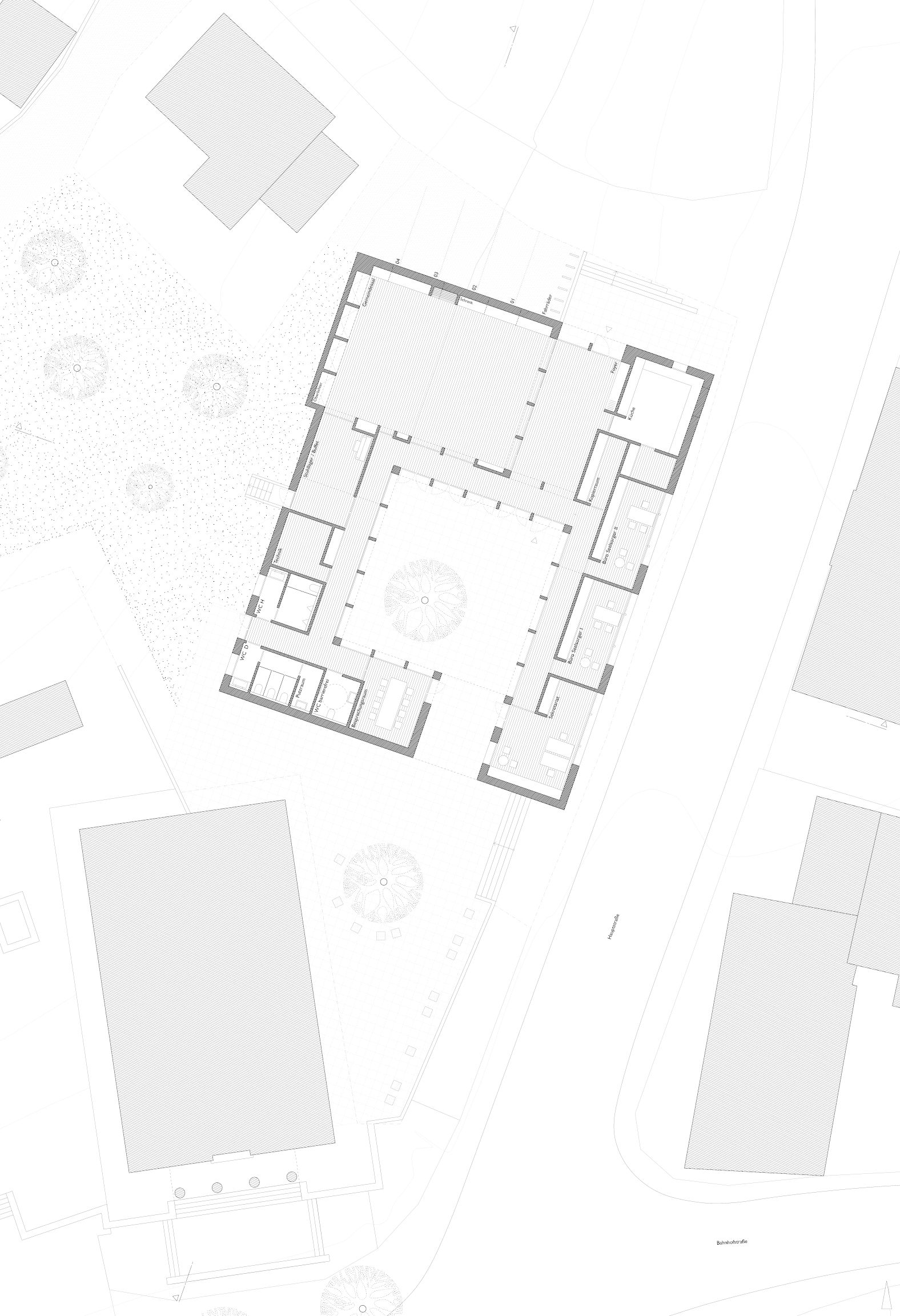
  • Der Neubau des Gemeindehauses soll von der evangelischen und der katholischen Kirchen­gemeinde, beide in Fahrenbach, gemeinsam genutzt werden. Die benach­barte evangelische Kirche wurde 1826 im Stil von Friedrich Weinbrenner erbaut. Während sie unmittelbar südlich an das Baufeld anschließt, befindet die katho­lische Kirche sich auf der anderen Seite, nördlich vom Baufeld, etwa hundert Meter entfernt.
  • Der Entwurf sieht vor, die beiden Lagen der Kirchen­gebäude im neuen ökumenischen Gemeinde­haus durch zwei Eingänge zu themati­sieren und räumlich erfahrbar zu machen. In einem gemeinsamen Innenhof treffen sich die Zuwege: Von Süden gibt es einen offenen Eingang in den Hof, während von Norden der Zugang in das Gebäude erfolgt. Angehörige beider Konfes­sionen können, jeweils von ihrer Kirche kommend, das Gemeinde­haus unmittelbar betreten. Der Aspekt der Begegenung in der offenen Mitte wird räumlich thematisiert.
  • Im Inneren erhält das Gemeindehaus mit dem Umgang um den Atriumhof seine Struktur. Das Pfarr­sekretariat und der Besprechungs­raum bilden die jeweiligen Endpunkte, während das Foyer in etwa mittig angeordnet ist und sich über die ganze Länge zum Saal öffnen lässt. Der Saal erhält gegenüber der Eingangs­seite mit einer indirekt beleuch­teten Wand aus vier geneigten Flächen seinen Abschluss. Diese Stirnwand eignet sich auch als Altarwand für kleine Andachten.
  • Öffnung und Schutz, Gemeinschaft und Kontem­plation, Feier und Alltag sind die Qualitäten der vorge­schlagenen Innen- und Außenräume für ein lebendiges Miteinander der beiden Kirchengemeinden.
 
 
  • Projektbeteiligte
  • Mitarbeit Wettbewerb: Tobias Lamadé, Lisa Schneider, Matthias Schlosser
  •  
  •