• Entwurfsgutachten
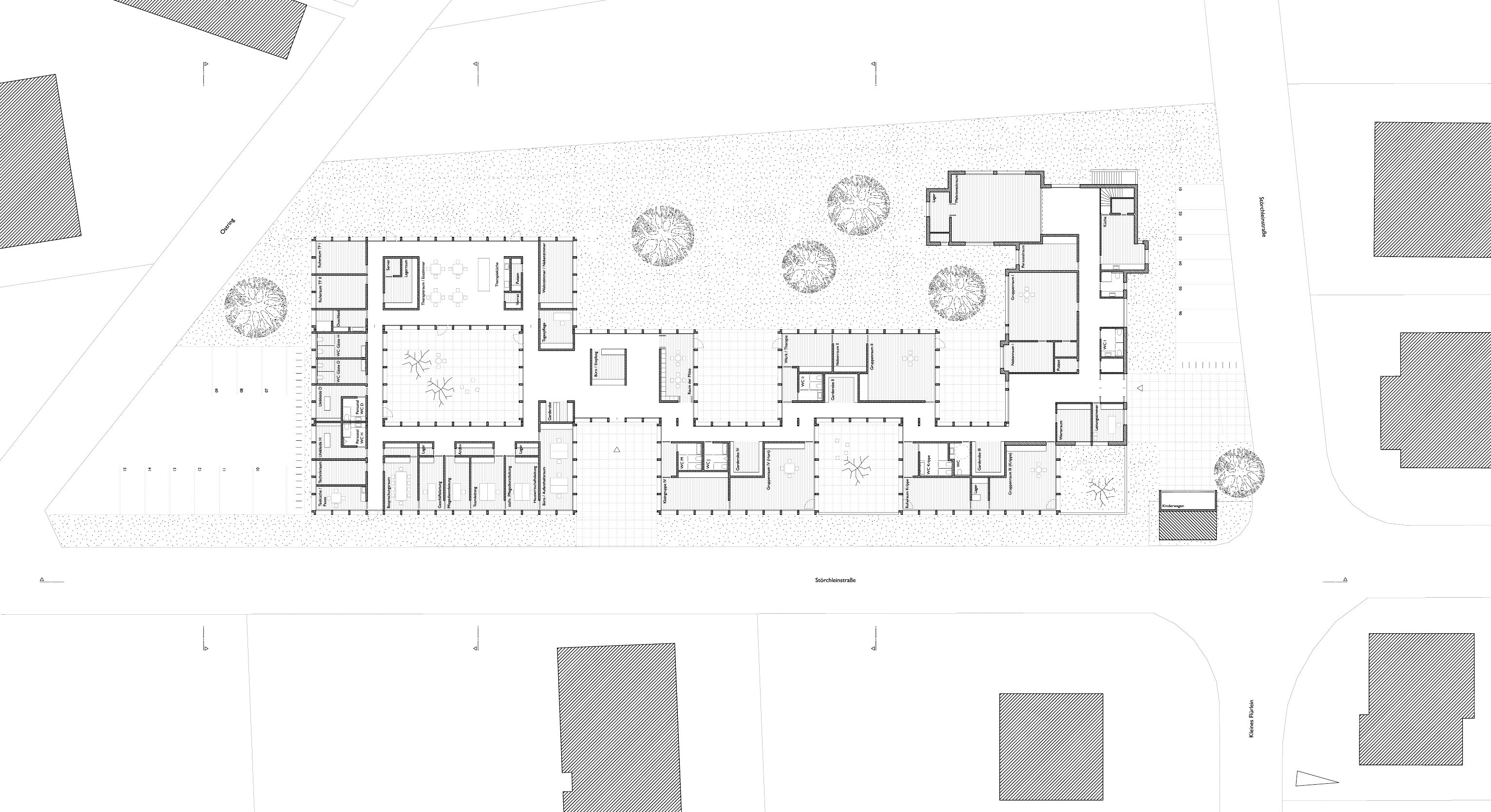
  • In dem kleinen Dorf Sonderhofen mit etwa 850 Einwohnern sollte in einer Koope­ration zwischen der Dorf­gemeinde und der ka­tho­lischen Kirche eine Sozial­station im An­schluss an einen bestehenden Kinder­garten geplant werden. Das Grundstück wurde bislang land­wirtschaft­lich genutzt.
  • Die Sozial­station soll Familien die nötige Infra­struktur vor Ort bieten und so einen Zuzug in das Dorf attrak­tiver machen. Mit der Sozial­station soll auch der Kinder­garten erweitert werden. Es gibt darüber­hinaus eine Nach­mittags­betreuung für Schüle­rinnen und Schüler. Und es schließt sich eine Tages­pflege für pflege­bedürf­tige, ältere Menschen mit einer mobilen Pflege an.
  • Alle Generationen sind in dem Gebäude vereint, das aus einer modular aufge­bauten Struktur von Satteldach-Baukörpern in Holz­bauweise besteht und sich einge­schossig in die land­wirtschaft­lich geprägte, dörfliche Umgebung einfügt.
  • Die Gebäude­teile für Kinder­garten und schulische Betreuung bestehen aus einer wechsel­seitigen, um Höfe mäan­drie­renden, linearen Struktur, während die mobile Pfelge mit Alten­betreung mit einem Atriumhof den Abschluss der Sozial­station bildet. Alle Teile sind in einem Gebäude vereint, so dass über die Genera­tionen hinweg ein Austausch statt­finden kann.
 
 
  • Projektbeteiligte
  • Mitarbeit: Tobias Lamadé, Aaron Harter
  •  
  •