• Neubau
  • Wettbewerb
  • 2. Preis
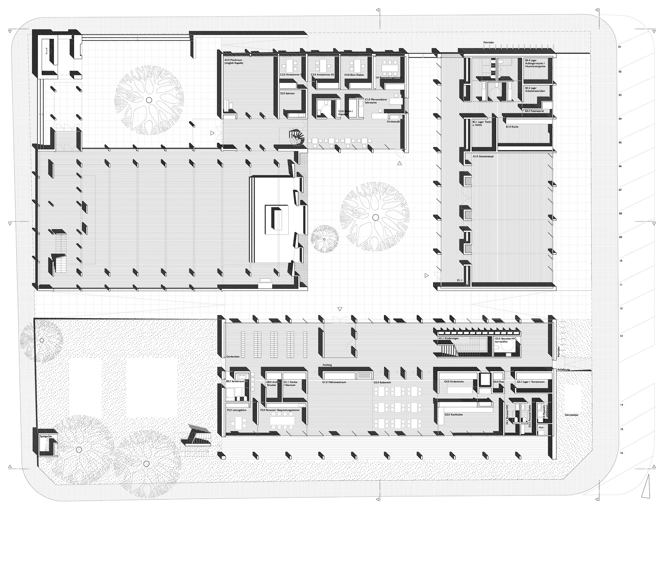
  • Die evangelische Markuskirche in Weinheim, ein qualitätvoller Sicht­betonbau von 1958, soll im Osten erweitert werden. Es soll ein neues Gemeinde­haus und eine 6-gruppige Kindertagesstätte ergänzt werden. Der Kirch­turm soll erneuert werden. Mit der neuen Bebauung an der Markus­kirche wird vorgeschlagen, das bisher abge­schlossene Quartier nach außen zu öffnen: Über drei Zugangs­wege (von Norden, Westen und Osten) erreicht man einen neu­geschaf­fenen, zentralen Innen­platz im Osten der Altar­wand der Kirche, über den das Gemeinde­büro, das Gemeinde­haus und die Kinder­tages­stätte erschlossen werden.
  • Es entsteht ein offener Frei­bereich, der als neue Mitte eine geschützte Zugangs­situation für alle Nutzungen schafft und gleich­zeitig Kommunika­tionsraum werden kann. Die Zugangs­wege und die Platzfläche werden durch die drei Baukörper flankiert.
  • Dabei öffnen sich die internen, linearen Erschließungs- und Foyerbereiche zum öffent­lichen Raum und leiten vom Straßen­raum ausgehend in das neue Gemeinde­quartier ein. Die Foyers bilden für alle drei Nutzungen die Schnitt­stelle zu den neu­geschaf­fenen Frei­bereichen, so dass ein lebendiges und viel­fältiges, offenes Raum­gefüge entsteht.
  • Die neue Bebauung übernimmt Konstruk­tions­elemente, die die Gestalt der Kirche bilden. In der Gestalt wird das Bestehende weiter­gebaut, während offene und interne Erschlie­ßungs­bereiche eine neue räumliche Qualität für das gesamte Quartier schaffen. Die neue Bebauung bezieht sich auf den Baukörper der Kirche und ergänzt ihn zu einer neuen stadt­räumlichen Figur.
 
 
  • Projektbeteiligte
  • Mitarbeit Wettbewerb: Tobias Lamadé, Anita Michalski, Lisa Schneider, Andra Ionel (Racasan)
  •  
  •