• Bestand
  • Umbau
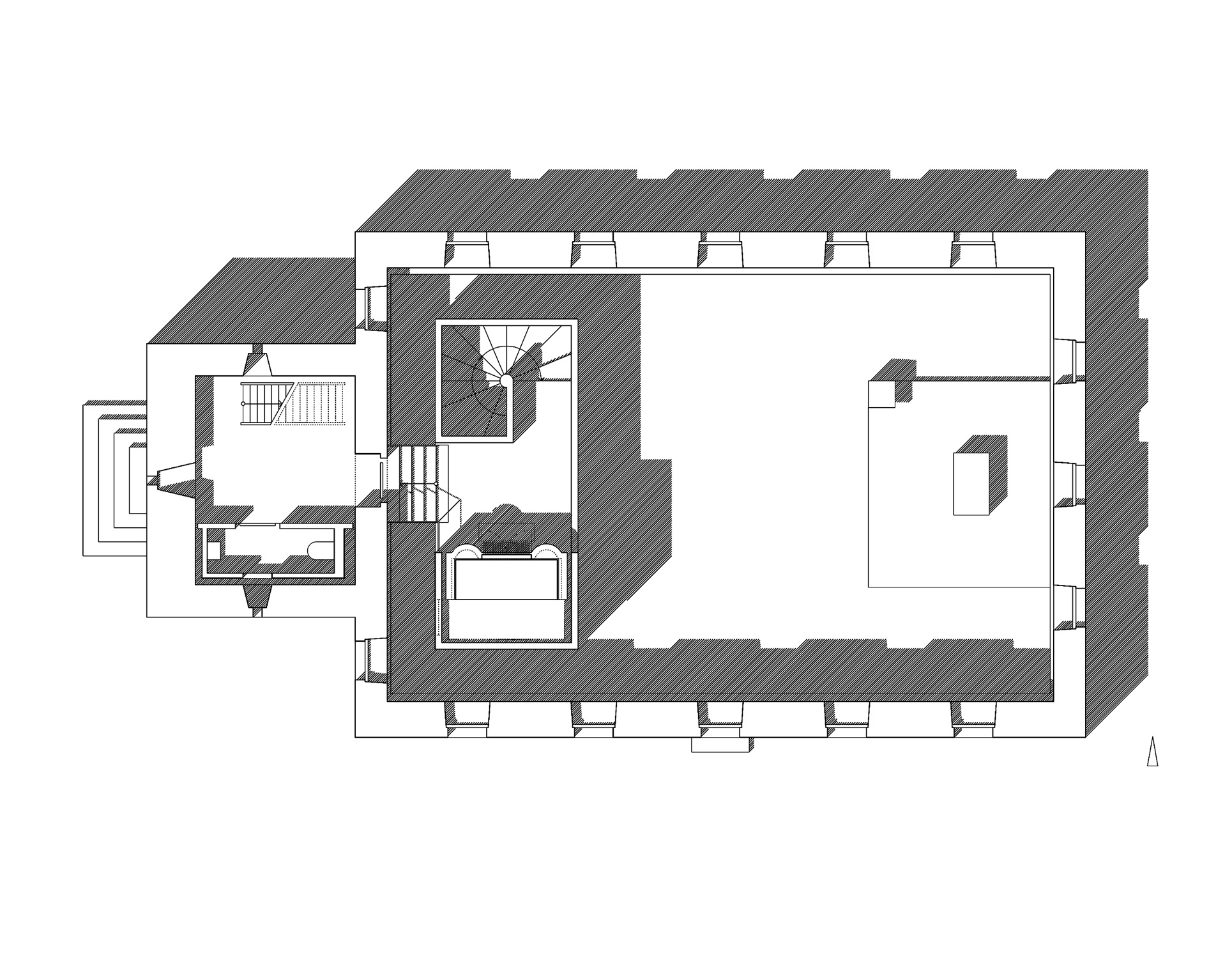
  • Der Innenraum der evangelischen Kirche in Kaltenbach mit seinen Ursprün­gen aus dem 12. Jahrhundert wurde zuletzt Anfang der 1960er Jahre tiefgrei­fend umgestaltet. Die Entfernung der barocken Seitenemporen und die Hinzufügung von Sakristei und Technik­räumen im rückwärtigen Teil des Kirchen­raums stellen die gravierendsten Änderungen der ursprünglichen Raumgestalt dar. Für den Kirchenraum und den Altar­bereich sollten neue Lösungen entwickelt werden und für die Orgel aus dem 19. Jahrhundert musste ein Standort gefunden werden. Die äußere Raumschale des heu­tigen Kirchenraums ist mit zwei über­ein­ander­liegenden Reihen Lochfenstern durch­brochen. Die regelmäßig perforierte Außen­hülle wurde erst durch die Entfernung der Seiten­emporen im Innen­raum sichtbar.
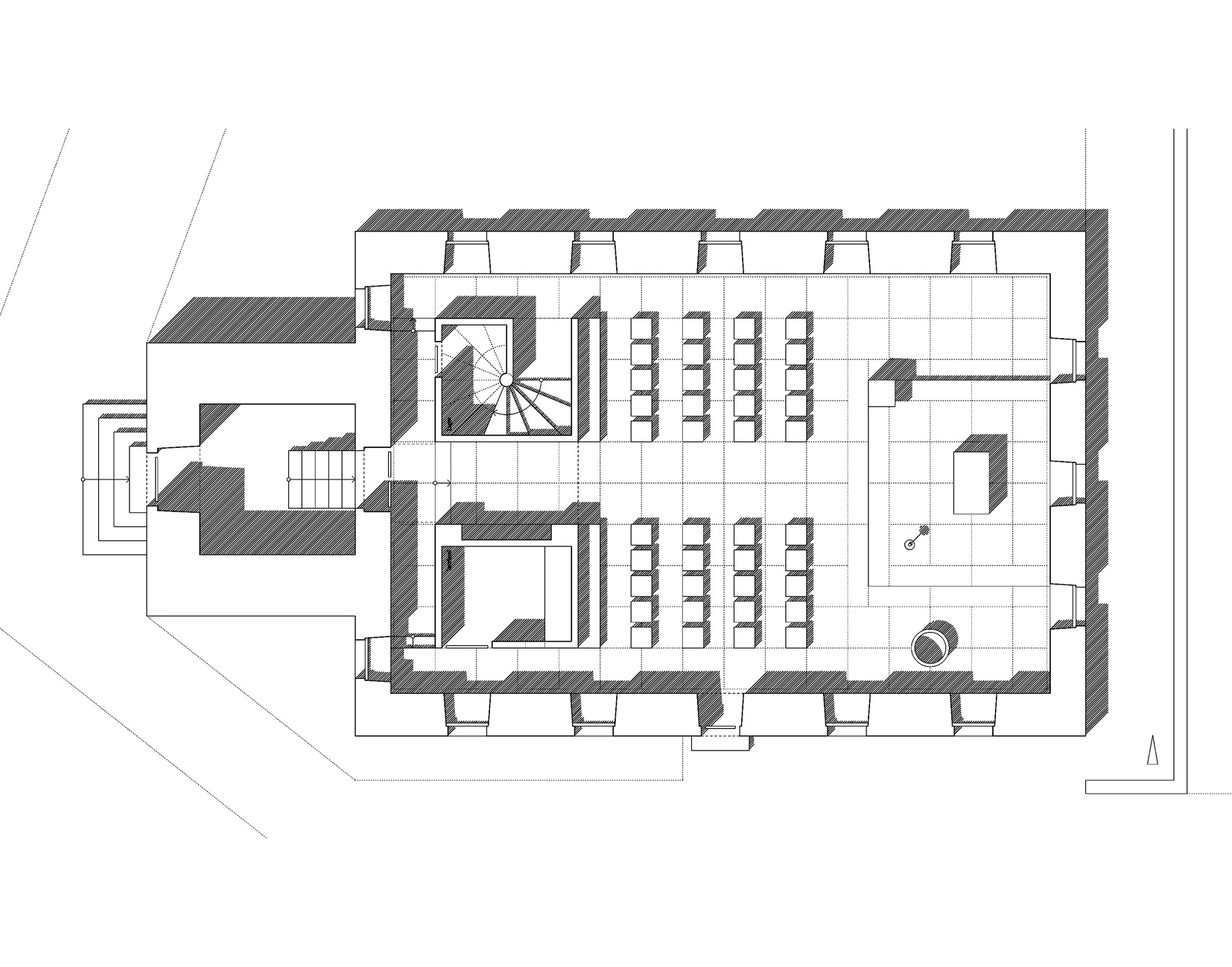
  • In der freigestellten Raumhülle wird im Hinblick auf die Proportion und den Tages­licht­einfall (umlaufend wie bei einer Laterne) eine neue Qualität für die trans­formierte Raum­gestalt des Ursprungs­raums gesehen. Um diese Qualität zu stärken, wurden die rück­wärtigen Raumteile entfernt und die perforierte Außen­hülle auch in diesem Bereich vollständig freigestellt.
  • Die zusätzlich benötigten Nutzungen von Sakristei und Abstell­raum werden in einen neuen, kompakten Bau­körper integriert, der auch die Orgel trägt. Der Körper steht frei, durch eine räumliche Fuge von den Außen­wänden abgelöst, im rückwärtigen Teil des Kirchen­raums. Durch die Frei­stellung kann die ursprüngliche Raum­dimension erfahren werden.
 
 
  • Projektbeteiligte
  • Bauherr: Evangelische Kirchengemeinde Malsburg
  • Mitarbeit Wettbewerb: Anita Michalski, Lena Bedal, Nadine Nicodemus, Alexander Schilling, Stefanie Schmitt