• Neubau
  • Wettbewerb
  • 1. Preis
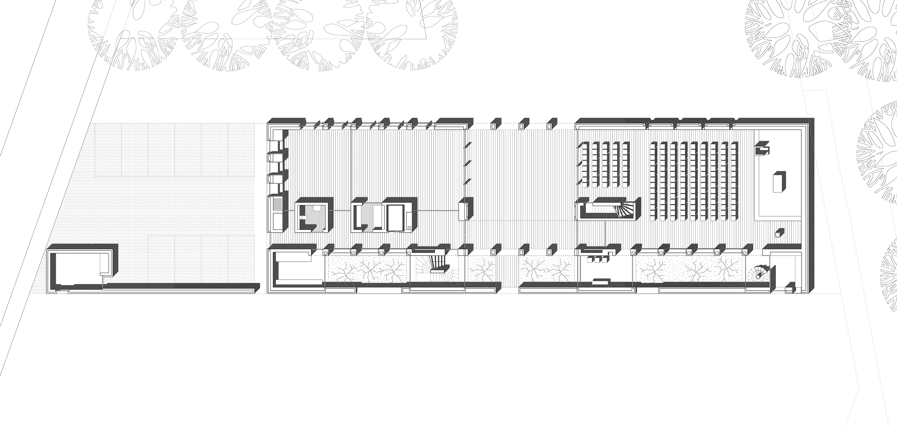
  • Der Neubau der Petrus-Jakobus-Kirche mit Gemeinde­haus schließt die Südseite eines Quartiers­platzes ab, auf dem regel­mäßig ein Wochen­markt statt­findet. Kirche und Ge­meinde­haus bilden im Quartier ein ruhiges, bestän­diges, nach außen hin eher ge­schlos­sen wirkendes Gebäude­ensemble. Im Erdge­schoss­bereich öffnen beide Gebäudeteile sich zu einem gemeinsamen Hof, der zum Quartiersplatz hin orientiert ist. Längs der Gebäude­spange entsteht eine lineare, offene Raum­folge von Altar­bereich, Kirchen­raum, verbin­dendem Hofbereich bis hin zu den zwei zusam­menschalt­baren Gemeinde­sälen.
  • Die Außen­wand­flächen der Gebäude sind als Ziegel­mauerwerk ausgebildet, das ge­schlämmt ist, wodurch das neue Gebäude­ensemble auf angemes­sene Weise mit den verputzten Bauten der Umgebung korres­pondiert. Eine Folge von geneigten Dach­flächen prägt die äußere Gestalt und ver­bin­det die beiden Gebäude­teile zu einer stadt­räumlichen Einheit. Gleich­zeitig korres­pondieren sie mit den Sattel­dächern der Umgebungs­bebauung.
  • Die geneigten Dach­flächen schließen den Kirchen­raum nach oben ab und geben ihm seine charakte­risti­sche Raum­gestalt. Der Kirchen­raum hat einen eindeutig sakralen Charakter mit einem deutlich erhöhten Lichtraum über dem Altar­bereich, der von einer Fenster­fläche im Osten und von einer Fenster­fläche im Süden belichtet wird. Der Lauf des Tages­lichts bestimmt die Licht­stimmung im Kirchenraum. Der Kirchen­raum öffnet sich seitlich zu einen Gartenhof hin, der Teil eines Raum­bandes ist, das Kirche und Gemeinde­haus verbindet und als eine Art Distanz­zone nach Süden hin zur Wohn­bebauung ausgebildet ist.
  • Die südlich anschließende Wohn­bebauung war als Ideenteil Bestand­teil des Wett­be­werbs und wurde nach den städte­baulichen Vorgaben eines anderen Büros umgesetzt.
 
 
 
  • Projektbeteiligte
  • Bauherr: Evangelische Kirche in Karlsruhe
  • Mitarbeit: Stefanie Schmitt (Projektleitung ab 2015), Alexander Schilling (Projektleitung bis Ende 2014), Peter Hoffmann, Anita Michalski, Phi Long Ngo, Christoph Panzer
  • Mitarbeit Wettbewerb: Lena Bedal, Anita Michalski, Alexander Schilling, Stefanie Schmitt
  • Licht­planung: lunalicht, Prof. Matthias Friedrich, Karls­ruhe
  • Tragwerksplanung: Prof. Faltlhauser Beratende Ingenieur­gesell­schaft mbH, Reut­lingen
  • HLS, Elektro: Bender+Urich Ingenieur­büro, Karlsruhe
  • Akustik, Schall­schutz: ISRW Klapdor, Düssel­dorf
  • Bauphysik: GN Bau­physik, Stutt­gart
  • Projekt­steuerung: Harrer Ingenieure GmbH, Karlsruhe
  • Brandschutz: Dipl.-Ing. Mieslinger, Harrer Ingenieure GmbH, Karlsruhe
  • Kunst am Bau: Prinzipalien: Peter Krebs, Büro für Architektur, Karlsruhe
  • Fotos: Brigida González; Luftaufnahme: Stefanie Schmitt