• Bestand
  • Anbau, Umbau
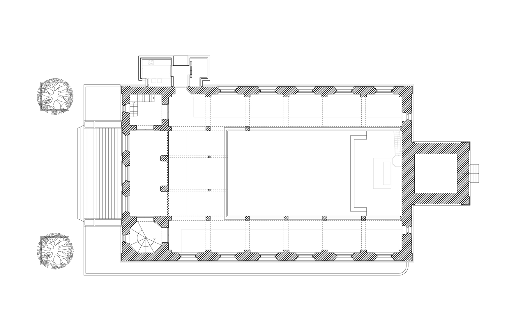
  • Die Evangelische Kirche in Gondels­heim von 1842 sollte um eine barriere­freie Erschlie­ßung, eine Gemeinde­küche und ein barriere­freies WC erweitert werden. Das um fast ein Geschoss angehobene Niveau des Kirchen­raums hatte eine inten­sivere Nut­zung durch die Kirchen­gemeinde immer erschwert.
  • Der Anbau wird so weit wie möglich im Volu­men minimiert. Er wird als flache Schei­be ausgeführt und durch eine Fuge von der Kirche abgelöst, um das histo­ri­sche Volu­men nicht zu verun­klären. Gleich­zeitig geht er einen Dialog mit der histo­ri­schen Bau­substanz ein und wirkt trotz der Ablösung über die Fuge nicht als Fremd­körper.
  • Über eine große Fassaden­öffnung im Anbau, die genau der Dimension des fehlenden Fensters an der Nord­fassade ent­spricht, konnte dieser Bezug her­gestellt werden. Das fehlende Fenster wurde nicht einfach ergänzt, sondern zu einer räumlichen Aus­sparung im Anbau trans­formiert, in der sich die kleinen Flur­bereiche befinden, über die nun das Panorama des gegen­über­liegenden Schloss­gebäudes sichtbar wird. Mit dem roten Sand­stein und dem rotem Wand­putz werden die Bau­materia­lien der Kirche auf­genommen und weitergedacht.
 
 
 
  • Auszeichnung Beispiel­haftes Bauen 2019 Archi­tekten­kammer Baden-Württemberg
  • Baukultur Kraichgau 2019 Auszeichnung
  • Hugo-Häring-Aus­zeich­nung 2017 BDA Baden-Württemberg
  • Architektur in Baden-Württemberg Band 12, 2018. Stuttgart, Karl Krämer Verlag, 2018, S. 174–175
  • Projektbeteiligte
  • Bauherr: Evangelische Kirche Gondelsheim
  • Mitarbeit: Peter Hoffmann (Projektleitung Ausführung), Stefanie Schmitt
  • Tragwerk: Büro für Baukonstruktion, Karlsruhe
  • HLS: Bender+Urich Ingenieur­büro, Karlsruhe
  • Bauphysik: vRP von Rekowski und Partner Ingenieur­büro für Bauphysik, Weinheim
  • Fotos: Peter Krebs