• Bestand
  • Renovation, Umbau
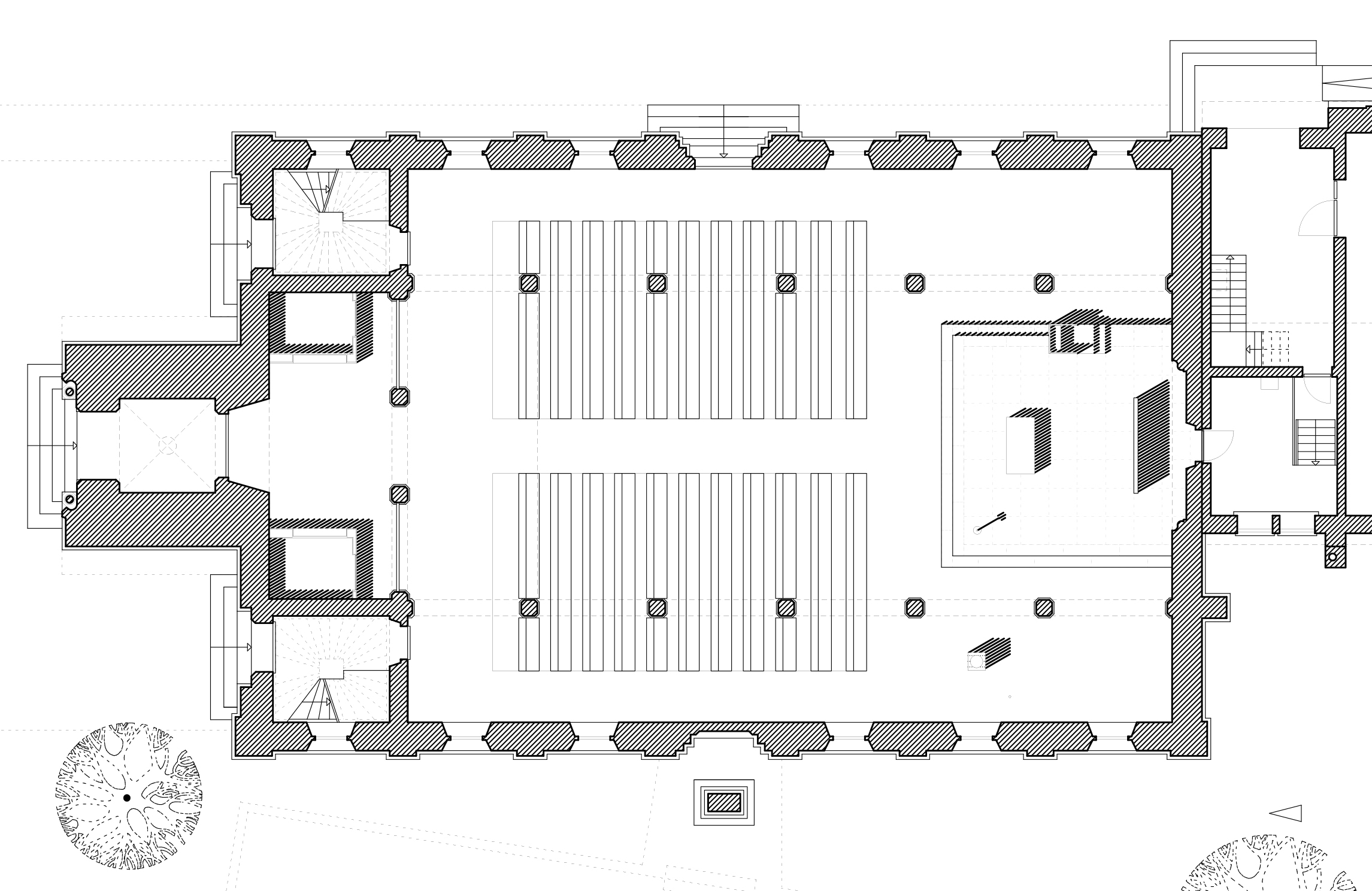
  • Der Innenraum der Evangelischen Kirche in Menzingen (1849) war zu renovieren, Risse in den Außenwänden zu schließen, die Tech­nik mit Beleuchtung und Heizung vollständig zu erneuern und der Dachstuhl mußte denkmal­gerecht saniert werden. Für den Gebrauch durch die Gemeinde am wich­tigsten: Der Altarbereich sollte ver­bessert und es sollten Abstell­mö­glich­keiten im Kirchenraum geschaffen werden.
  • Um die Altarwand zu beruhigen, wird das runde Fenster aus den 1960er Jahren wieder geschlossen und der Bereich hinter dem Altar erhält eine Wandscheibe, die den Sakristeieingang abdeckt und den Rück­bereich fasst. Da die historischen Wand­bekleidungen fehlen, werden nach einem neuen Farbkonzept alle Innen­wandflächen weiß gestrichen. Pfeiler und Stützen mit ihren plastischen Details werden besser sichtbar und das Tageslicht mit seiner wechs­elnden Farbigkeit kann im Kirchenraum erlebt werden.
  • Der Altarbereich wird von den Seiten gelöst und freier in den Raum gestellt. Er wird aus massiven Kalksteinplatten und -blöcken hergestellt, die ein steinernes Bodenrelief bilden. Der Altar besteht aus geschichteten Eichenstäben, die eine Kalksteinplatte tragen. Die Prinzipalstücke sind ebenfalls aus massivem, gekalkten Eichenholz ge­schich­tet und gefügt. Der Taufort besteht aus Kalkstein. Der Aufbau und die Fügung der neuen Ergänzungen soll einfach und unmittelbar nachvollziehbar sein. Der Raum wird mit Materialien ergänzt, die ursprüng­lich verwendet wurden: Stein, Holz und Messing.
 
 
 
  • Baukultur Kraichgau 2019 Auszeichnung
  • Hugo-Häring-Auszeichung 2014 BDA Baden-Württemberg
  • Auszeichnung Beispiel­haftes Bauen 2013 Archi­tekten­kammer Baden-Württemberg
  • Architektur in Baden-Württemberg Band 11, 2015. Stuttgart, Karl Krämer Verlag, 2015, S. 168–169
  • Wechselnde Farbigkeit. Baunetz Meldung vom 09.10.2013 L
  • Projektbeteiligte
  • Mitarbeit: Anita Michalski
  • Lichtplanung: Matthias Friedrich, lunalicht
  • Tragwerkplanung: Büro für Baukonstruktion GmbH, Karlsruhe
  • Tragwerkplanung Altarbereich: Dipl.-Ing. Josef Bieringer
  • HLS: Ingenieur­büro Breiden, Dossenheim
  • Restauratorin: Inge Kumlehn, Sandhausen
  • Fotos: Peter Krebs