• Bestand
  • Renovation, Umbau
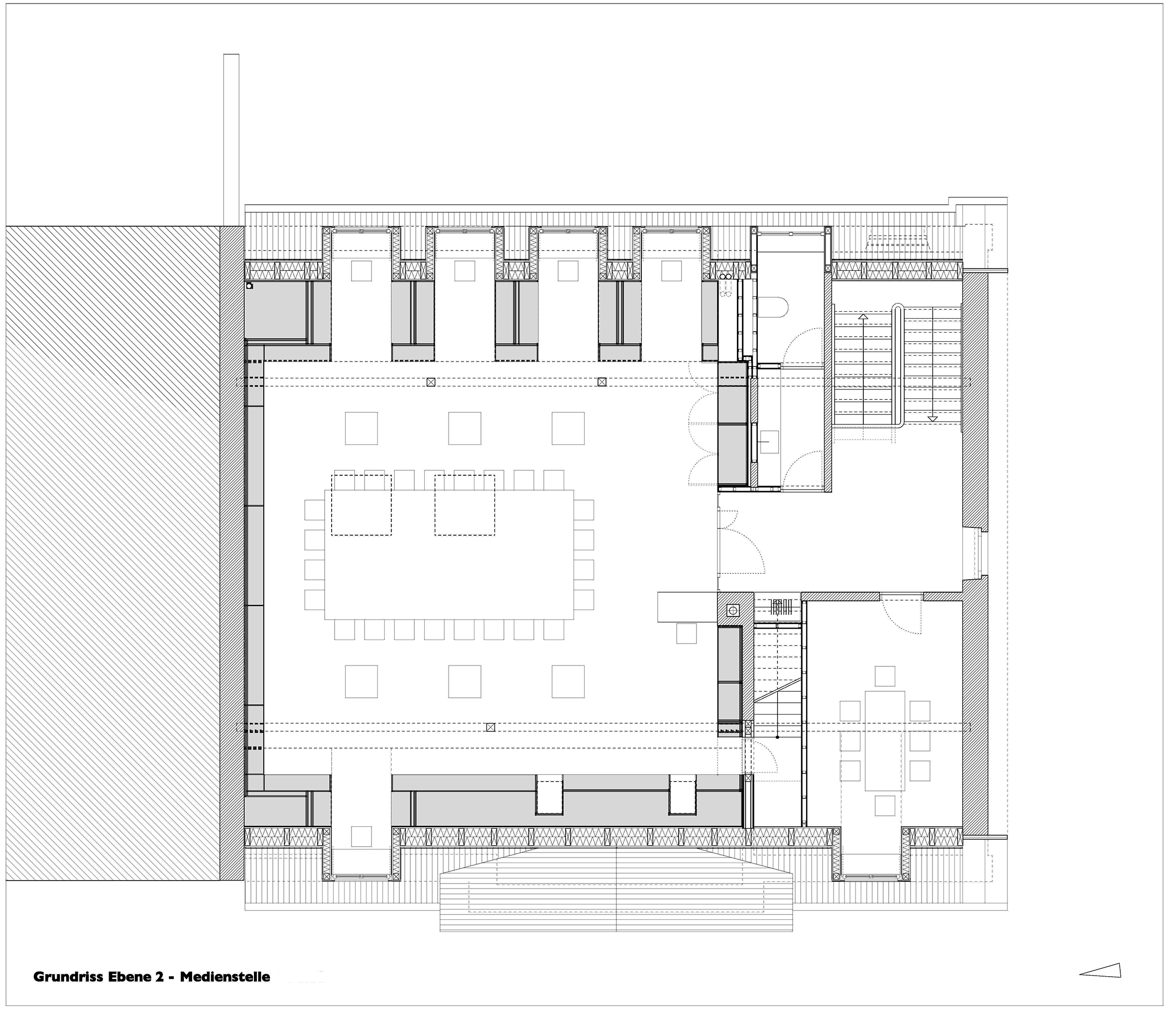
  • Ein ehemaliges Wohngebäude von 1879 sollte zum Verwaltungsgebäude des Dekanats umgebaut werden. Es sollte neben den Büroräumen auch die Medienstelle des Dekanats und ein Konferenzraum für circa 20 Personen vorgesehen werden. Im Ge­bäude fanden in den 1950er Jahren weiter­gehende Umbau­maß­nahmen statt. Auf einen Neubau wird verzichtet, um das historisch wertvolle Gebäude in Karlsruhe zu erhalten.
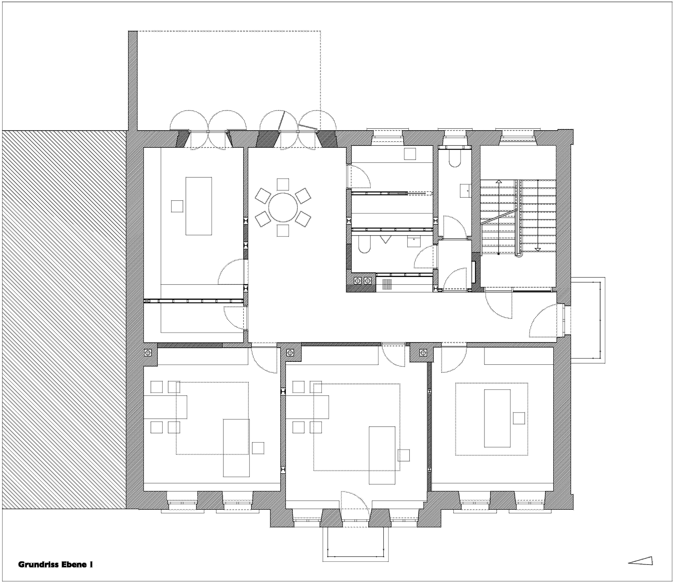
  • Der Bestand sollte in seiner Gestalt und Struktur gestärkt werden: Die Grund­riss­struktur des Gebäudes wird in den beiden Haupt­geschossen beibehalten. Die weniger qualitätvollen Ergänzungen der 1950er Jahre werden in Teilen zurückgebaut. Lediglich die Sanitärräume, in einem Kern an der rück­wärtigen Fassade gelegen, werden neu geordnet. Im Dachgeschoss entsteht an Stelle der vormals kleinen Kammern das Medien­zentrum für die Bibliotheks- und Konferenz­nutzung. Die Regale bilden die Raum­begrenzungs­flächen. Das Tageslicht leuchtet den großen Raum indirekt aus.
 
 
 
  • Auszeichnung Beispiel­haftes Bauen 2012 Archi­tekten­kammer Baden-Württemberg
  • Projektbeteiligte
  • Mitarbeit: Alexander Schilling (Projektleitung)
  • Projektsteuerung: Harrer Ingenieure, Karlsruhe
  • Tragwerksplanung: Harrer Ingenieure, Karlsruhe
  • Elektroplanung: Heinz Tomaschewski, Karlsruhe
  • HLS-Planung: T.P.I. Trippe+Partner, Karlsruhe
  • Fotos: Peter Krebs