• Neubau, Bestand
  • Gutachten
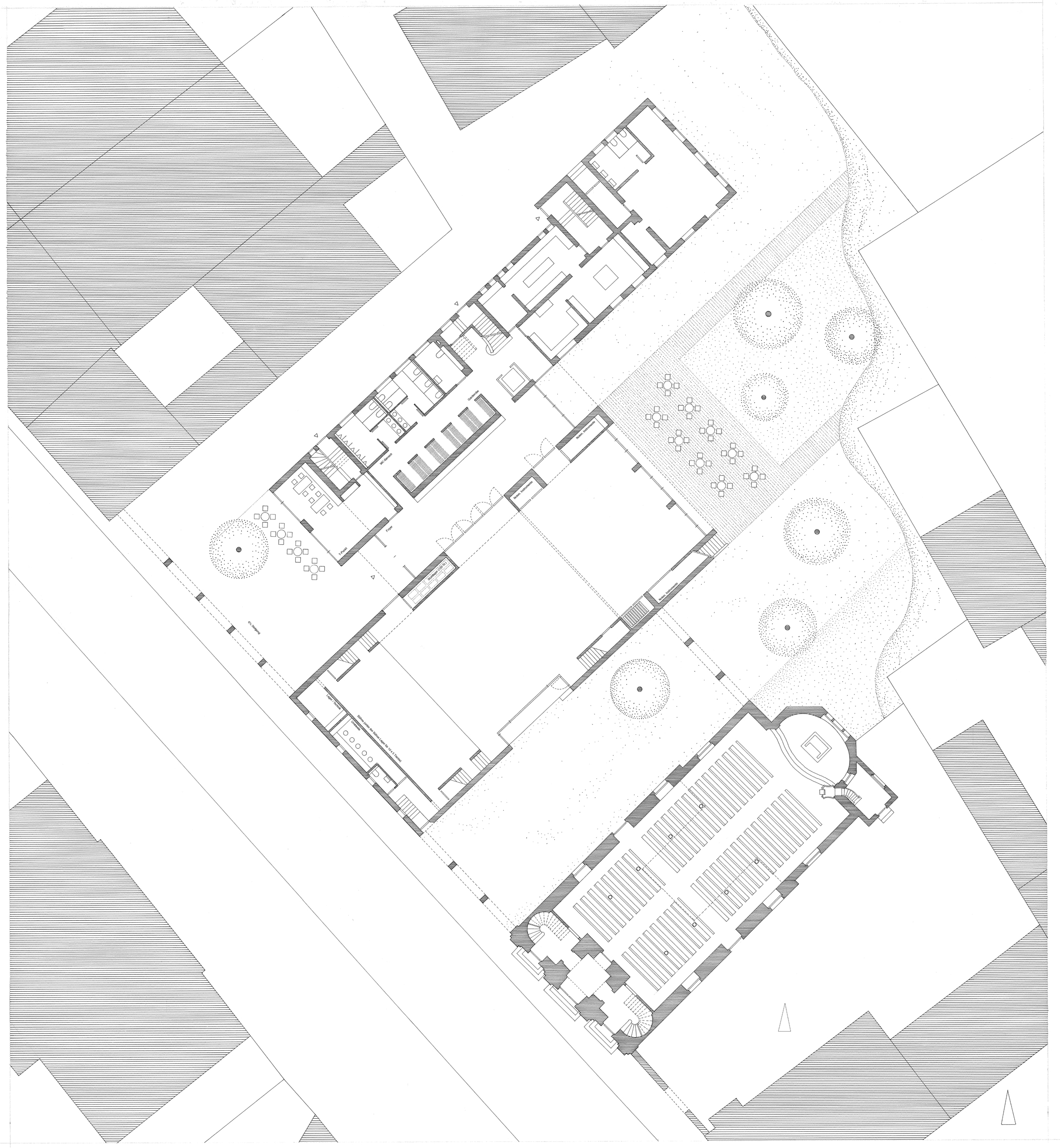
  • Nach einem Brand soll ein Gemeindesaal für ca. 300 Personen in der Innenstadt von Schwetzingen neu aufgebaut werden. Zur Verfügung steht die Fläche zwischen er­haltenem Längsflügel mit Gemeinde­räumen und der Kirche. Der Saal soll auch als Bürgersaal von der Stadt Schwetzingen genutzt werden. Die Altstadtsituation und die Nähe zum Schloss sollen mit berücksichtigt werden.
  • Es wird vorgeschlagen, mit dem Saal die historische Straßenflucht wieder her­zu­stellen, indem er als „Haus“ giebelständig an die Straße gebaut wird. Er öffnet sich gleichzeitig über eigene Vorplatzbereiche zum Eingang des Gemeindehauses und zum Nebeneingang der Kirche. Die große Bühne wird zur Straße orientiert, so dass sich der kleine, abtrennbare Saalteil zu einem Frei­bereich im rückwärtigen Garten öffnen kann. Über ein großes Fenster zur Straße wird eine Galerie hinter der Bühne indirekt hinterleuchtet. In den zweischaligen Saal­wänden liegen nicht nur die benötigten Lagerräume, sondern es wird auch eine differenzierte, direkte und indirekte Tages­lichtführung ermöglicht. Erschließungs­zonen zwischen den Raumschalen ermög­lichen eine vielfältige und lebendige Nutzung von Saal und Bühne.
 
 
  • Projektbeteiligte
  • Bauherr: Evangelische Kirchengemeinde Schwetzingen
  • Mitarbeit Wettbewerb: Modell: Alexander Schilling